Property ID
Description
Situated strategically between MacPherson and Potong Pasir, Generations @ Tannery has been designed as a high‑specification hub for clean and light industrial activities. Its presence in the market meets the growing demand for sophisticated, city-fringe workspaces that provide long-term asset security, making it a top choice for both forward-thinking business owners and investors focused on building a lasting legacy.
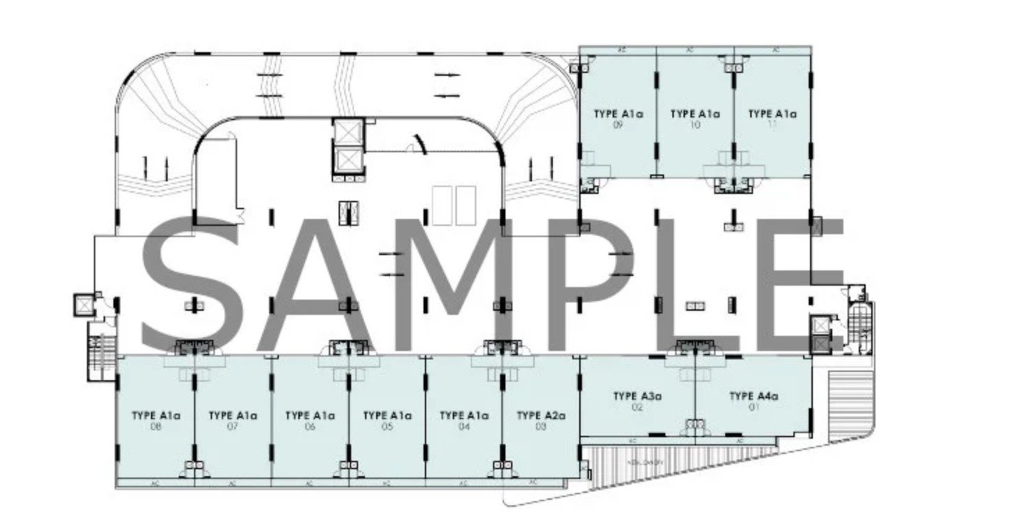
The building’s interior is designed to run smoothly and to be flexible, using a multi storey factory layout. Every floor has large rooms with high ceilings, built on a strong frame that can hold heavy loads, which is important for big machines and heavy stock. Regarding the floor plans, Generations @ Tannery focuses on maximizing usable square footage through regular, wide-span configurations that minimize obstructing columns. These units are designed around flexibility, enabling companies to effortlessly divide the space for specialized production lines, climate‑controlled warehouses, or professional office configurations.
Contemporary safety and security provisions are integrated into the building’s architecture, with continuous CCTV surveillance and modern fire‑suppression systems. The corridors and common areas are deliberately spacious, facilitating the effortless transit of pallet jacks and heavy trolleys from the loading zone straight to individual units. These pragmatic design decisions underscore a commitment to satisfying the rapid logistical demands of today’s electronics and e‑commerce enterprises.
The mix of a rare freehold title and a carefully designed industrial layout makes Generations @ Tannery a top property in District 13. As Singapore’s industry moves to higher value work, the flexible floor plans and good location keep the property useful for many years. It gives a good work setting where tough work meets a nice look, giving businesses a solid base to grow for many years.
Generations @ Tannery Location
Generations @ Tannery, located at 71 Tannery Lane, sits in the heart of the established MacPherson industrial estate in Singapore’s District 13. This prime spot is on the city’s edge, serving as a vital link between suburban residential areas and the Central Business District. Businesses situated here benefit from a mature industrial ecosystem where logistics and specialized services are already deeply integrated into the neighborhood’s infrastructure. Businesses situated here benefit from a mature industrial ecosystem where logistics and specialized services are already deeply integrated into the neighborhood’s infrastructure.
The property’s connectivity depends on how close it is to major roads and public transport stops. It is located just off MacPherson Road and Aljunied Road, giving quick access to the Pan Island Expressway (PIE) and the Kallang Paya Lebar Expressway (KPE), which allow fast travel to Changi Airport and the Tuas industrial area. For commuters, Mattar MRT Station on the Downtown Line is a short walk away, and Aljunied and Potong Pasir stations are also easily reachable.
Besides good transport links, the location works well because nearby facilities meet everyday needs. The area has many local canteens and coffee shops, and a large dining room on the top floor of the building. Because it is close to the Paya Lebar regional hub, a wider range of shops, banks, and restaurants is only a few minutes away. It allows businesses to run efficiently while ensuring their team stays comfortable and has everything they need nearby.
Generations @ Tannery nearby Amenities
The area around Generations @ Tannery is lively and mixes industrial and city life, giving many facilities that help businesses and their workers. People who work in the building can eat at several nearby places, including a big cafeteria on the top floor, plus many coffee shops and food stalls in the Tannery and Genting Lane estates. If you want more choices, MacPherson Road is a short walk away, with many hawker stalls and modern cafés that are good for team lunches or casual meetings.
Shopping and daily errands are easy since many grocery stores and malls are just a few minutes away. M2 Macpherson Mall and the Poiz Centre provide plenty of shops, banks, and dining options, while nearby supermarkets like Prime and Ang Mo are perfect for quick supply runs. This convenient setup means everything from professional services to green spaces like Bidadari Park is within reach.
The location’s main draw is its excellent transit links, making it easy to reach from anywhere in the city. You can walk to Mattar MRT on the Downtown Line in about nine minutes, while the nearby Aljunied and Potong Pasir stations provide quick connections to the East-West and North-East lines. If you drive, you can quickly get onto the Pan Island Expressway and the Kallang‑Paya Lebar Expressway, which makes it easy to reach the Central Business District or Changi Airport. This combination of local support and good connectivity makes the development a very practical choice for any modern business.
End-User and Investor Future-Ready Asset
Generations @ Tannery is a smart, long-term choice for both business owners and investors. Its most valuable feature is that it is a freehold property. In a market where most industrial spaces only have 30 or 60-year leases, owning a freehold unit means you don’t have to worry about a declining lease or losing your business home in the future.
For companies, the building is designed to grow with you. The spaces are flexible, with high ceilings and strong floors that can handle heavy equipment or large amounts of stock. Whether you are running a tech startup, a lab, or an e-commerce warehouse, the layout is easy to change as your needs shift. Having a modern, clean office-like look also helps your business appear more professional to your clients.
From an investment perspective, the property offers a highly dependable source of rental income. Its location on the outskirts of the city makes it an attractive option for tenants who require a central address yet wish to avoid the high costs associated with the downtown core. This steady demand typically simplifies the process of attracting reliable tenants and sustaining high occupancy rates, thereby guaranteeing a consistent and predictable stream of rental revenue for owners.
The value of the area is also expected to rise over time. Nearby redevelopments in Paya Lebar and Bidadari are making the whole neighborhood more modern and connected. This mix of a rare permanent ownership status and a great location makes the property a solid asset that can be passed down through generations.
Generations @ Tannery Registration of Interest
Review of Generations @ Tannery
Generations @ Tannery For Sale
Generations @ Tannery is a modern industrial building in Singapore that offers flexible workspaces for light businesses and production. Its central location and freehold status make it a popular, long-term choice for companies looking for a reliable home base.
Product SKU: Generations @ Tannery
Product Brand: Industrial Property
Product Currency: SGD
Product Price: 2880000
Product In-Stock: InStock
Address
-
Address Generations @ Tannery
-
Country Singapore
-
Postal code/ZIP 347807
Overview
- Property ID 6378
- Price Price on call
- Property Type B1 Industrial
- Property status For Sale
- Year Built Launching Q2 2026
- Project Generations @ Tannery
- Developer Generations@Tannery Pte Ltd
- Address 71 Tannery Lane Singapore
- Tenure Freehold

