Property ID
Description
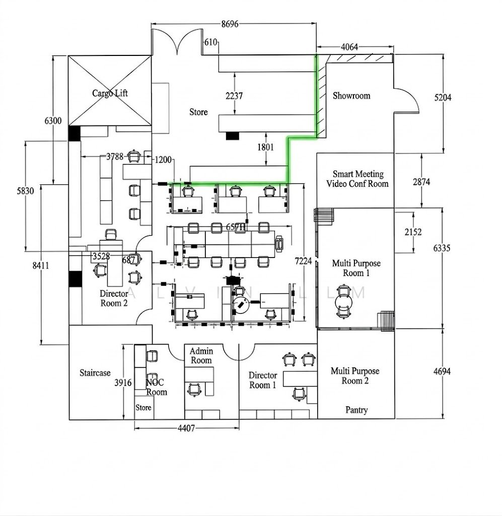
The EPL Building is designed as a strong light‑industrial (B1) facility that focuses on structural strength and high‑capacity support. It has thick floor plates and high ceilings to hold technical equipment, industrial racking, and heavy machinery. This design lets the space easily shift between normal office use and more demanding logistics activities.
The EPL Building’s layout balances many workstations with private executive suites. Open-plan areas in the center are designed for administrative and collaborative teams. The building’s edges house specialized rooms that need sound or visual privacy. This modular design lets the interior be adapted to different business needs, from production lines to corporate management.
The property has built‑in technical infrastructure, including a Network Operations Center (NOC) room and smart video‑conference meeting rooms. These features mean the building already has high‑speed data connectivity and modern communication tools that technology companies need. The dedicated NOC room makes the building especially suitable for firms that need constant network monitoring and secure server housing.
Logistical efficiency is built into the structure with high‑capacity cargo lifts that move goods vertically between floors. These lifts give direct access to upper‑level store rooms, reducing the time and effort needed for inventory distribution. By locating the transport systems near the main workspace, the building keeps logistics operations separate from daily administrative work.
Beyond its technical and industrial functions, the EPL Building also has professional, client‑facing areas. It includes dedicated Showrooms and several Director Rooms. Showrooms display products and welcome corporate guests on site. Private executive offices provide a quiet space for strategic planning and sensitive negotiations, keeping leadership connected to the business core.
The building adds more value with flexible Multi‑Purpose Rooms and essential employee support areas such as a Pantry. These spaces can be rearranged for staff training, large seminars, or internal events, offering more versatility than typical industrial facilities. With social and functional amenities, the property provides a complete working environment that meets operational and human needs.
EPL Building Location
The EPL Building is located at 1100 Lower Delta Road, a key spot in District 03’s industrial corridor. Its location gives businesses a major logistical advantage, especially those needing fast travel between the CBD and western industrial hubs. The building is near the Ayer Rajah Expressway and Central Expressway, enabling efficient vehicle and cargo movement across Singapore’s main roads.
This site is known for its excellent commuter connectivity, being close to Tiong Bahru and Redhill MRT stations on the East‑West Line. The stations link directly to the city centre and the international airport, making it easy for staff and clients to reach the building by public transport. The close MRT access reduces the need for private cars and allows companies to attract talent from a wider area.
The property has a strong local bus network. Buses stop on Lower Delta Road and Bukit Merah Central, giving the nearby community extra transit options. The building is designed with large cargo lifts and dedicated loading areas so that external access is matched by efficient internal logistics. By linking major expressways with key public transit lines, the EPL Building provides a highly accessible environment that supports both regional distribution and everyday corporate commuting.
EPL Building Nearby Amenities
The EPL Building has many facilities for work and personal use. Nearby restaurants include the Cendex Cafeteria and other places to eat. Popular hawker centres such as Jalan Bukit Merah Block 112 Market & Food Centre and Telok Blangah Crescent Block 11 Market & Food Centre offer many types of local food.
Giant supermarkets and NTUC FairPrice are within walking distance and provide daily groceries and other items. Tiong Bahru Plaza has more shopping, banks, and entertainment. Nearby malls are Depot Heights and Valley Point.
The neighborhood has basic community and lifestyle facilities. Nearby schools are Radin Mas Primary, Zhangde Primary, and CHIJ St. Theresa’s Convent. The famous IKEA Alexandra is a short walk away. Easy access to ATMs, petrol stations, and child development centers makes it well connected for many businesses.
End-User and Investor Future-Ready Asset
The EPL Building blends flexible industrial design with high‑spec infrastructure to meet evolving user and investor needs. Tenants enjoy operational resilience, a Network Operations Center, and Smart Meeting Video Conference Rooms that support digital workflows. Its modular layout lets companies scale or reconfigure production, labs, and offices without major structural changes, keeping it useful for emerging industries such as advanced manufacturing and data‑driven logistics.
From an investment point of view, the property is a stable, appreciating asset because it sits in a highly sought industrial corridor near the city center. The building’s B1 light industrial zoning attracts many types of tenants, which lowers vacancy risk. It also has strong logistics features such as high‑capacity cargo lifts and dedicated storage areas, adding long‑term value by meeting the supply chain industry’s needs. By combining traditional industrial use with modern corporate requirements, the EPL Building is a strategic investment that will keep its competitive advantage in Singapore’s changing real estate market.
EPL Building Registration of Interest
Review of EPL Building
EPL Building For Rent
EPL Building is a light industrial (B1) commercial property located at 1100 Lower Delta Road in District 03, Singapore, offering versatile workspace options near the Tiong Bahru and Redhill MRT stations.
Product SKU: EPL Building
Product Brand: Industrial Property
Product Currency: SGD
Product Price: 910 -10.688/month
Product In-Stock: InStock
5
Address
-
Address EPL Building
-
Country Singapore
-
Postal code/ZIP 169206
Overview
- Property ID 7455
- Price Price on call
- Property Type B1 Industrial
- Property status For Rent
- Year Built TBA
- Project EPL Building
- Developer N.A
- Address 1100 Lower Delta Rd, Singapura
- Tenure 99-Years Leasehold

