Property ID
Description
In Singapore, the name Atrix is most often linked to two different things: a building that is owned outright and used for light industry and a big retail chain that sells consumer technology. The following paragraphs describe the main features and focuses of the two.
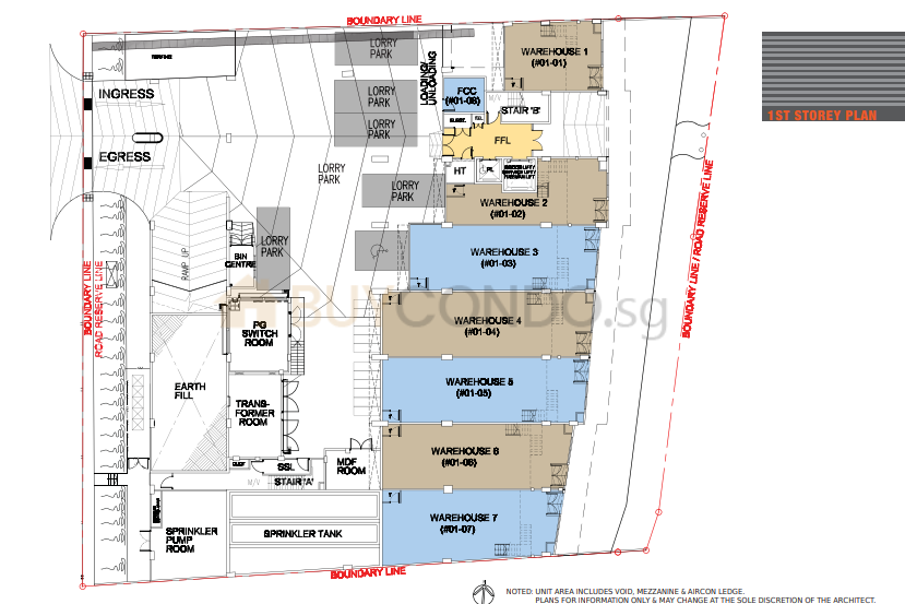
The Atrix building is an industrial property you own outright that was finished in 2013 and built by Hafary Pte Ltd. It was designed as a light industrial (B1) building and has a modern glass front that makes it different from older industrial buildings. The building has approximately 59 units, giving a professional corporate look for companies that do light manufacturing, logistics, or clean‑tech work.
A key structural feature of the Atrix development is its “ramp‑up” design, which allows vehicles to go straight to higher floors. This is very useful for industrial tenants because it makes it easy to load and unload goods right at the door of the unit. Many units have high ceilings, sometimes up to 6 m, which allows the addition of mezzanine levels to use the space better.
Atrix building units usually have no columns, offering flexible open space for various work needs. Each unit has a private bathroom and ample parking right outside, convenient for business owners. These features support combined office and warehouse use, letting companies keep headquarters and storage in one place.
Atrix (especially Atrix Dynamics) is one of Singapore’s largest computer and information technology (IT) store chains. The company runs many official brand shops and service centers all over the island, mainly selling big global brands such as ASUS, Lenovo, HP, Dell, and Acer. Their way of doing business focuses on strong relationships with these makers, which enables them to sell special product lines and lower prices that smaller stores usually can’t reach.
The retail operation is known for its “Service Experience Centres,” which combine regular sales with after‑sales help and fixing problems. These stores are set up so that people who love technology can try the newest gaming laptops, high‑performance desktops, and special hardware before they buy. This focus on the customer experience has helped the brand stay strong in big retail locations, serving both everyday users and expert “power users” alike.
Atrix is not just a retailer. It has grown by building a big local stock system that lets it process orders quickly, even offering quickly delivery for online purchases. By linking its physical stores with a strong delivery network, the brand gives customers a mix of shopping options. Atrix is a flexible name in Singapore’s business world, being both a special industrial property and a top consumer electronics brand.
Atrix Location
For Atrix, accessibility isn’t just a perk; it’s the whole point of where they set up shop. If you’re looking at the industrial building, the “win” is all about the ramp-up access. Most industrial spots make you fight for a shared cargo lift, but here you can just drive your van straight up to your unit door. It’s also positioned right near the PIE and KPE, so if you’re moving stock, you can jump onto the expressway and be almost anywhere in Singapore in twenty minutes. Plus, being a quick five-minute walk from Aljunied MRT means your team doesn’t need a car just to get to work.
When it comes to their tech stores, Atrix Dynamics plays a different game by planting themselves right in the middle of your daily commute. Instead of making you travel to a specialized tech mall, they take over prime spots in huge suburban hubs like Tampines Mall, Junction 8, and Causeway Point. Since these malls are built directly on top of major MRT interchanges, you can drop off a laptop for repair or test out a new gaming rig while you’re out for groceries or heading home. It’s all about being exactly where the most people are already passing through.
Atrix Nearby Amenities
If you’re going to the Atrix building in Geylang, you’re in a great food area. The best thing for workers is that Sims Vista Market and the famous late‑night frog porridge and seafood stalls are a short walk away. Paya Lebar Quarter (PLQ) is only one MRT stop away if you want more than a quick hawker meal, which is useful if you need to go to the gym, bank, or a nice coffee shop. For the office pantry, Sheng Siong and HAO Mart supermarkets are right around the corner.
In contrast, an Atrix tech store feels very different because it’s inside large malls like Tampines Mall or Causeway Point. It’s very convenient: you can leave your laptop for a quick repair and then watch a movie, shop for groceries at FairPrice, or eat dinner—all in one place. You’re not just going for tech; it’s a trip where you can finish all your errands at once.
End-User and Investor Future-Ready Asset
If you’re looking at Atrix as an asset, the “future-ready” part really comes down to the fact that it’s built to handle how business is changing. For someone running a company there, the space’s sheer flexibility is a big win. Those high ceilings mean you aren’t just stuck with a flat floor; you can put in a mezzanine for an office or set up high-tech vertical storage. Because it’s a ramp-up building, it’s built for the “I need it now” economy—you can get vans in and out of your unit door without fighting over a shared loading bay, which is a huge deal for logistics or e-commerce.
For an investor, the value is more about what it represents in the Singapore market: a rare “forever” asset. Most industrial land here is on a countdown with short 20 or 30-year leases, but since Atrix is freehold, you don’t have that looming expiration date eating away at your property value. It sits right on the edge of the Paya Lebar transformation. As that area becomes more corporate and polished, the demand for a high-spec spot is likely to remain high. Whether you’re using it to run your own show or just collecting rent, it’s the kind of property that’s designed to stay relevant long after the newer, leasehold buildings start feeling the squeeze.
Atrix Registration of Interest
Review of Atrix
Atrix For Sale / For Rent
Atrix is a prominent freehold commercial building in Singapore's Geylang district, specifically designed to support light industrial (B1) activities and modern production needs.
Product SKU: Atrix
Product Brand: Industrial Property
Product Currency: SGD
Product Price: 1.400.000-2.000.000
Product In-Stock: InStock
5
Address
-
Address Atrix
-
Country Singapore
-
Postal code/ZIP 388409
Overview
- Property ID 6930
- Price Price on call
- Property Type B1 Industrial
- Property status For Rent, For Sale
- Year Built 2013
- Project Atrix
- Developer Hafary Pte Ltd
- Address Lorong 23 Geylang, 388409
- Tenure Freehold

