Property ID
Description
ArcSphere has a modern design with a sleek exterior that stands out in an industrial setting. It was built specifically for B1 light industrial use, combining style with the tough durability needed for business. Its clean lines and professional look give a corporate image that many modern companies want for a sophisticated presence.
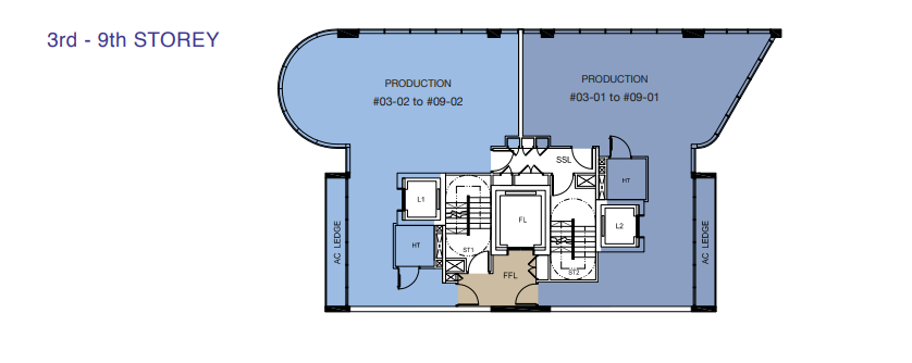
The interior is flexible and space‑efficient. Each unit has tall ceilings and strong floors, allowing a range of setups from clean‑room labs to technical workshops. The floor sections can be changed, letting businesses adjust their interiors to fit their work or equipment.
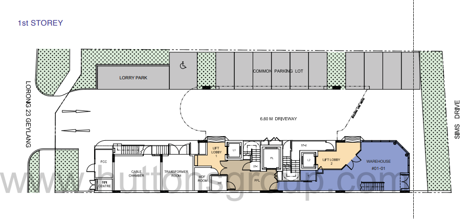
Technical specifications are a key part of the building’s appeal. It has special loading and unloading areas that make moving goods easy and cut down on wait time for logistics. The building also has fast service lifts and passenger elevators, so moving between the ten floors stays efficient even when busy.
Besides work units, the building offers useful facilities that enhance daily life. Lobbies and common areas are clean and professional, welcoming clients and partners. Modern security—CCTV and controlled entry—protects valuable items and intellectual property.
The building is owned outright, which is a key part of its long‑term value. Many industrial properties have short lease terms, but this freehold gives owners and investors a permanent, stable arrangement. That makes it especially appealing to businesses that want to grow over many generations or protect their capital for the long term.
The property’s environment is focused and productive. Strictly light‑industrial zoning keeps the building clean and quiet, unlike heavy manufacturing zones. It suits tech startups, creative studios, and distribution hubs that need a professional environment for office work and light production.
ArcSphere Location
ArcSphere is in District 14, right at the city‑suburb edge. It gives businesses proximity to the Central Business District for meetings and visibility, while still offering the practical logistics of an industrial area. The location feels professional without the heavy downtown traffic.
The commute is a major advantage. You can walk to three MRT lines—Aljunied, Geylang Bahru, and Mountbatten—so the team can come from anywhere in Singapore. Several bus stops are minutes away on Sims Drive and Aljunied Road, always offering options.
Its location provides quick access to PIE, KPE, and ECP, letting service vans or trucks reach the airport or city centre swiftly. Two entrances from Sims Drive and Lorong 23 Geylang keep traffic moving and avoid bottlenecks during rushes. This smart, efficient setup suits modern B1 industrial businesses that need mobility.
ArcSphere Nearby Amenities
The area around ArcSphere is a food lover’s dream. You’re just a short walk from Sims Vista Market & Food Centre, and nearby are many local kopitiams, such as the one at 53 Sims Place. Whether you want a quick hawker meal or a decent coffee spot, you’re spoiled for choice.
Running errands is super convenient. Sheng Siong and Hao Mart are nearby for groceries; Paya Lebar Square and PLQ are just one MRT stop away for shopping, pharmacies, gym, retail, and banking.
The neighborhood has a cool vibe thanks to nearby Geylang Serai, with its character and old shophouses, avoiding a sterile industrial feel. The presence of Nexus International School adds to its established, lively atmosphere rather than a quiet business zone.
End-User and Investor Future-Ready Asset
For customers, the main advantage is the B1 zoning and the flexible space. As industries move toward tech, research, and digital distribution, you need a unit that can change. With high ceilings and modular layouts, you’re not stuck in one way—you can easily switch from a normal warehouse to a fancy lab or a creative studio as your business changes. It’s basically a space that grows with you instead of holding you back.
From an investor’s perspective, owning land outright is the main point. Most industrial land in Singapore is moving to shorter 30‑ or 60‑year leases, so owning a piece of land permanently is a big protective step for your investments. It protects your money and gives value over time that leasehold properties can’t match. Plus, being on the edge of the city means many tenants want a practical, professional spot, so empty spaces stay few.
For a business owner, ArcSphere is an up‑to‑date, professional headquarters that will still feel current after five years. For an investor, it’s a rare historic property in a top location that isn’t pressured to sell quickly. It’s a good investment for anyone who wants steady returns and the flexibility to respond to future market changes.
ArcSphere Registration of Interest
Review of ArcSphere
ArcSphere For Rent
ArcSphere is a modern industrial building in Geylang that offers flexible spaces for warehouses and light factories.
Product SKU: ArcSphere
Product Brand: INDUSTRIAL PROPERTY
Product Currency: SGD
Product Price: 3.300/month
Product In-Stock: InStock
5
Address
-
Address Arcsphere
-
Country Singapore
-
Postal code/ZIP 388405
Overview
- Property ID 6967
- Price Price on call
- Property Type B1 Industrial
- Property status For Rent
- Year Built 2013
- Project ArcSphere
- Developer Oxley Sims Pte. Ltd.
- Address 124 Lor 23 Geylang, Singapura 388405
- Tenure Freehold

